retour imprimer

Plans types de construction de blocs sanitaires en milieu scolaire



note Jun 2016
Ed. GRET - Antananarivo GRET - Nogent sur Marne
Téléchargeable sous format: PdF (150 ko)
Résumé:
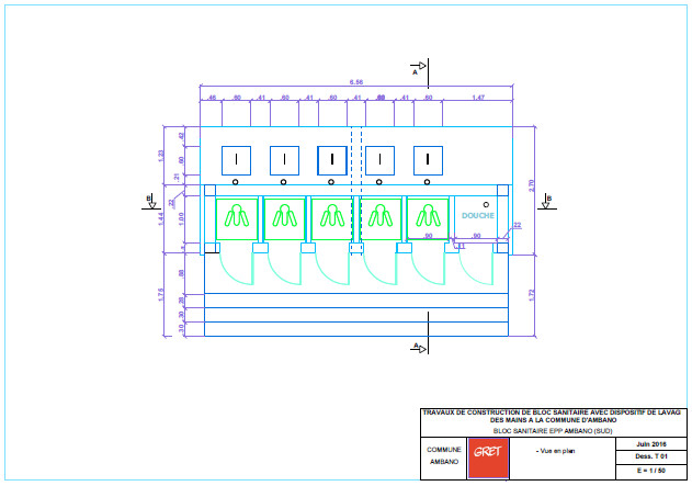
Plans types utilisés par l'ONG GRET à Madagascar pour la construction de blocs sanitaires en milieu scolaire
Vue en plan et plan de masse
Coût indicatif : environ 30 000 000Ar

Publics-Cibles:

Acteurs de coopération , Ingénieur, concepteur , Santé (professionnels de la)

Mots clefs:

accès à l'assainissement (CI) (DT) (OP) (ope) , bloc sanitaire public (CI) (DT) (OP) (ope) , école (CI) (DT) (OP) (ope) , technologie (CI) (DT) (OP) (ope)

Pays concerné:

Madagascar (CI) (DT) (OP)

Editeurs/Diffuseurs:

GRET - Antananarivo - Madagascar
    

GRET - Groupe de recherche et d'échanges technologiques - Nogent sur Marne
    

En cas de lien brisé, nous le mentionner à communication@pseau.org

   © pS-Eau 2026